| 公司: | 日比野设计 | Youji no Shiro | KIDS DESIGN LABO | 类型: | 建筑 | 景观 |
|---|---|---|---|
| 地区: | 日本 | 标签: | 幼儿园 |
以“能感受到四季变化的园舍”为设计概念,位于群马县前桥市能容纳40名1到2岁幼儿的新建托幼一体园。位于赤城山山脚下前桥市的环境随着季节迁移不断产生变化,因为能接收到从赤城山吹来的山风,是一个易于感受风和自然变化的地区。
This is a facility newly built for 40 children who are from 1 years old to 2 years old in Maebashi, Gunma, with the concept ‘Feel the change of seasons’. Maebashi city is located at the foot of Mt. Akagi and the weather changes a lot depending on seasons. For examples, in winter they have a strong and cold wind from Mt Akagi, called ‘Akagi Oroshi’ and they feel the change of seasons very well.
因优先保育的功能,整齐划一相似的保育空间在不断增加,保育园变成仅仅只是管理孩子们的场所。以此为课题,希望将园舍打造为一个能让人感到安心和放松,感受到大自然的环境。
Recently monotonousnursery environment seems to be increasing. But in this project, we think it as a problem that rooms in many nursery schools is designed to be easy for adults to control children, so the facility where people spend a comfortable time in feeling nature.
![]() | ![]() |
为了能够让使用这里的孩子和大人尽情感受自然,更方便生活,采用了日本传统家宅的各种要素。长长伸出的房檐,大大的窗,根据季节变化的风和光穿过。作为园舍其中一个自然要素的土墙具有调节室内湿度整顿室内环境的效果。孩子们通过和自然近距离接触并在这样的环境中生活,身体机能得到培育。采用具有日本传统房屋特征的连廊和推拉门,各个房间连为一体,视野开阔,老师更容易确认孩子们的状态,老师感到安心,孩子们也能尽情地游戏。
As the environment to feel nature, some elements of Japanese traditional house are installedwhich has many ideas to face with nature and manage it.Deep eaves and large windows can take wind and sunlight which change depending on seasons. Mud walls have heat insulating and moisture buffering effect. In these ways children can develop physical function while feeling nature even inside. In addition, two-adjoining room is also Japanese traditional house style. By making two rooms together, children can play around safely while teacher watch them over.
![]() | ![]() |
▽具有日本传统房屋特征的连廊和推拉门
▽网状吊床
![]() | ![]() |
▽盥洗室
在这样拥有轻松氛围的环境中生活,孩子们感受着季节的变幻,感官得到刺激感性被培育的同时,通过接触当地的自然素材,对故乡产生浓厚兴趣。
In such a comfortable environment, children can feel the change of seasons and cultivate their sensitivity by themselves and at the same time they can have chances to touch local materials and learn its culture.
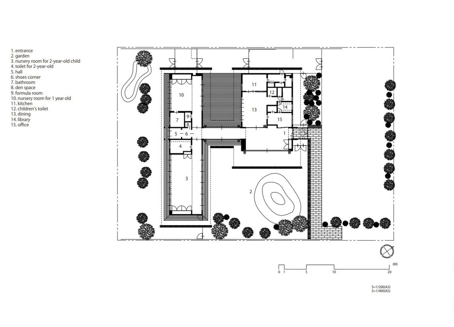
▽平面图
▽立面图
▽剖面图
项目名:MS Kindergarten and Nursery
所在地:群马县前桥市
设计监理:HIBINOSEKKEI + Youji no Shiro + KIDS DESIGN LABO
占地面积:1743.77㎡
建筑面积:370.14㎡
使用面积:297.92㎡
构造规模:木质结构、一部分钢筋结构 、平层
竣工时间:2021年3月
摄影:Ryuji Inoue
Project name:MS Kindergarten and Nursery
Address:Maebashi, Gunma
Design and construction supervision:HIBINOSEKKEI + Youji no Shiro + KIDS DESIGN LABO
Site area:1743.77㎡
Building area:370.14㎡
Total floor area:297.92㎡
Structure:Wood and partially steel, single storey
Completion:March, 2021
Photo credit:Ryuji Inoue
更新日期:2022-05-25 11:42:22
非常感谢 日比野设计 与 Youji no Shiro 与 KIDS DESIGN LABO 带来的精彩项目, 查阅更多