城市仅占整个地球面积的2%,还有98%的面积一直被忽视......乡村是“一块画布、投射着一切行动、意识形态、政治团体和个体革命的意图”。
——雷姆·库哈斯
Cities make up only 2% of the earth's surface, and 98% of it has been neglected...... The countryside is "a canvas on which all actions, ideologies, political groups and individual revolutionary intentions are projected."
——Rem Koolhaas
城镇是城市发展的产物,而乡村在中国更具有特殊价值和意义, 如今乡村在快速的城市化进程中遭到冲击,拯救这片土地的不是翻新的建筑,而是找到属于该场所的的表达方式。也许乡村振兴有很多种可能性,我们希望通过对美学的理解找到最适合的可能。
Cities are the product of urban development, while the countryside has special value in China. Nowadays, the countryside has been impacted by the rapid urbanization process. What saves this land is not the renovated buildings, but the expression of the place. Perhaps there are many possibilities for rural revitalization, and we hope to find the most suitable possibility through the understanding of aesthetics.
▼总平面图
项目位于北京通州环球影城东侧的唐大庄村。整个村落呈现的是无数个村落的缩影,秩序化的村落肌理规范着每一户的院落边界。由于距离环球影城的区位优势,村落吸引了大量游客,特色民宿成为该村落不可或缺的功能组合,同时也改变了村民的生活方式。
The project is located in Tangdazhuang Village, east of Universal Studios, Tongzhou, Beijing. The entire village presents a microcosm of countless villages, with orderly village textures regulating the boundaries of each household's courtyard. Due to its location advantage from Universal Studios, the village has attracted a large number of tourists, and characteristic homestays have become an indispensable functional combination of the village, which has also changed the lifestyle of the villagers.
客户希望改造后此地能改善生活品质,提升生活仪式,以此唤醒人们对美好生活的向往;同时保障村民与游客、民居与民宿的和谐共生。我们将整个建筑改造立足于原有建筑环境,改善为更具有包容价值的空间环境,最终寻找其精神内涵。
The customer hopes that the renovated area can improve the quality of life and enhance the living ceremony, in order to awaken people's longing for a better life; Simultaneously ensuring the harmonious coexistence of villagers and tourists, as well as residential and homestays. We based the whole building transformation on the original building environment, improve it into a more inclusive space environment, and finally find its spiritual connotation.
▼建筑立面
形式上纯白的方盒子成为此地最具标示性的元素,依托空间内部的划分,沿街西立面采用四个大小不一的拱形采光窗,西侧广场上的三颗元宝树成为夕阳映射到建筑立面的光影画笔,灵动的枝叶透过拱形窗直达室内。落日余晖使建筑立面蒙上一层金色,熠熠生辉。
The white square box becomes the most symbolic element here. Relying on the internal division of the space, four arched lighting Windows of different sizes are adopted along the west facade of the street. The three ingot trees on the west square become the light and shadow brush of the sunset mapped to the facade of the building, and the shadow reaches the interior through the arched window. The setting sun gave the building a golden glow.
▼主入口
建筑改造整体划分为两部分:公共空间及住宿区,考虑二者的动静管理,在建筑入口规划可直达客房的流线,使二者既互相独立又相互联系。作为村落沿街的公共空间,该区域布置水吧成为社区功能的一部分。
The overall renovation of the building is divided into two parts: public space and accommodation area. Considering the dynamic and static management of the two, a flow line that can directly reach the guest rooms is planned at the entrance of the building, making the two independent and interconnected.As a public space along the street of the village, the bar in this area becomes a part of the community function.
▼公共空间
▼吧台
公共空间利用吊顶高度的差异将地面抬高和下挖,增加直线空间的层次质感。吊顶、灯光、吧台等室内弧形元素与外立面的弧形窗统一并不失特色。恰到好处的下沉卡座区保证视线可直视室外。
The public space uses the difference in the height of the suspended ceiling to raise and dig down the ground, increasing the hierarchical texture of the linear space. The interior arc elements such as the suspended ceiling, lighting, and bar counter are unified with the arc window of the exterior facade. The properly sunken booth area ensures a direct view of the outside.
▼弧形元素的互相统一
▼下沉空间
穿过公区进入内部庭院,整个建筑对庭院呈环抱之势:下沉的观景鱼池、声声不息的循环水景、直通屋顶平台的旋转楼梯、光影婆娑的红枫完全处于建筑的包围之中,内庭院与外界隔离起来,远离城市的喧闹,加高的女儿墙使此处围合空间的向心性更强,营造出特有的归属感。
Passing through the public area and entering the courtyard, the entire building embraces the courtyard in a circular manner: a sunken observation fish pond, a circulating water landscape, a rotating staircase that leads directly to the roof platform, and the swaying red maple trees are completely surrounded by the building. The inner courtyard is isolated from the outside world, far away from the hustle and bustle of the city. The elevated parapet wall enhances the centripetal nature of the enclosed space and creates a unique sense of belonging.
▼庭院空间
▼连廊
▼加高女儿墙增加庭院向心性
▼庭院空间
▼庭院夜景
业主是品牌家居设计、生产厂家,他希望建筑空间与自家家具可以和谐共生,因此室内所有的家具产品都依据居住需求进行加工制作。
The customer is a brand home design and manufacturer, and they hope that the building space can coexist harmoniously with their own furniture. Therefore, all indoor furniture products are processed and produced according to residential needs.
▼客房
穿过客房的拱门可达后院餐厨区,后院的核桃树、农田、飞鸟、家畜等自然物自成一体。核桃树下的长桌摆满了四季,使每一位远离城市喧嚣与劳累工作而选择这里的客人都能够感受到“霜草苍苍虫切切,村南村北行人绝。独出后门望原野,月明荞麦花如雪。”的惬意时光。
Through the arch can reach the backyard kitchen area, the backyard walnut tree, farmland, birds, livestock and other natural objects into a whole. The long table under the walnut tree is filled with the four seasons, so that every guest who chooses here can feel comfortable away from the hustle and bustle of the city and the hard work.
▼二层平台
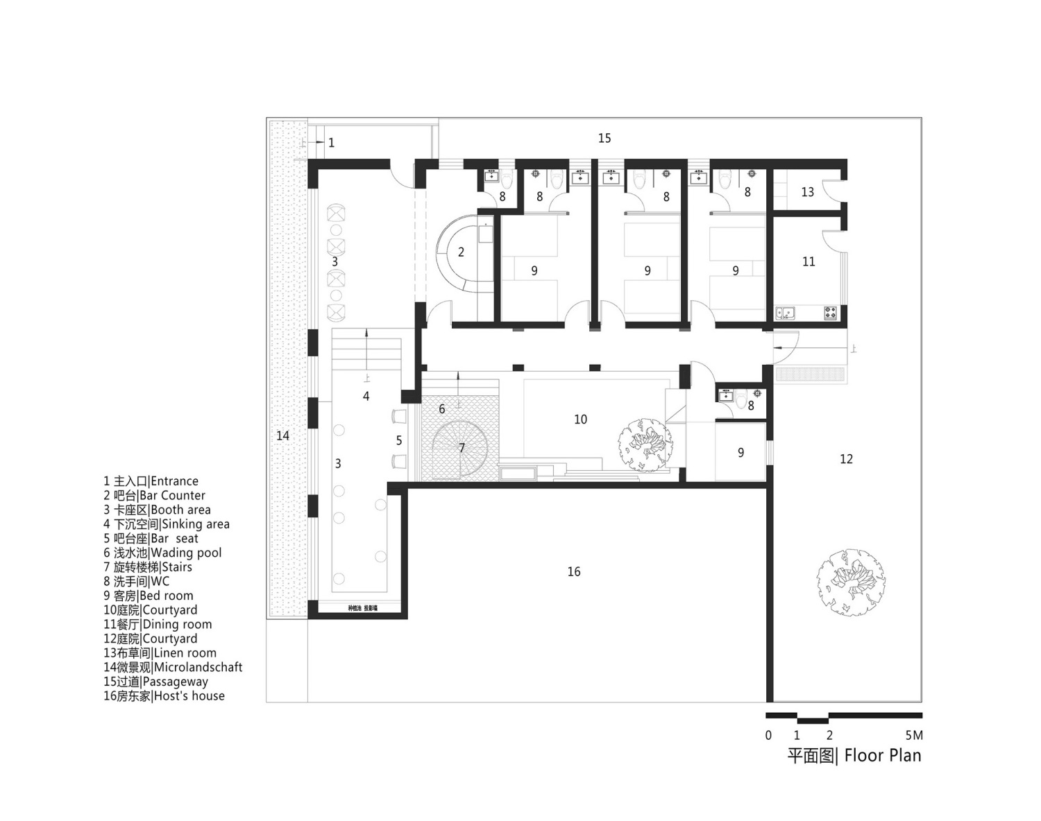
▼平面图
▼立面图
▼施工过程
项目信息:
项目名称:“拾光夏”·#舍
项目类型:改造
项目地址:北京市通州区
设计公司:DK大可建筑设计
项目设计:2023.4
完成年份:2023.10
设计团队:杨玺琛 王域沣 王学艺 董方龙
建筑面积:232㎡
摄影版权:大可设计
客户:梧桐良舍(北京)酒店管理有限公司
施工方:天津七彩换新装饰工程有限公司
材料:混凝土方块砖、耐候钢板、橡木饰面板、玻璃
Project name: Cherish the Moment·# House
Project type: Renovation project
Project location: Tongzhou, Beijing
Design: Dake Architectural Design
Design year:2023.4
Completion Year:2023.10
Leader designer & Team: Xichen Yang,Yufeng Wang,Xueyi Wang,Fanglong Dong
Gross built area: 232㎡
Photo credit: Dake Architectural Design
Client: Wutong Liangshe (Beijing) Hotel Management Co., LTD
Construction party: Tianjin Qicai Decoration Engineering Co., LTD
Materials:Concrete block brick, weathering steel, oak veneer,glass
更新日期:2023-11-03 17:24:45
非常感谢 DK大可建筑设计 带来的精彩项目, 查阅更多