| 公司: | 日比野设计 | Youji no Shiro | KIDS DESIGN LABO | 类型: | 建筑 |
|---|---|---|---|
| 地区: | 日本 | 标签: | 学校 |
以“了解当地,认可多样性的园舍”为设计理念,福井县敦贺市的新建企业主导型保育园。敦贺市过去作为亚洲,欧洲以及日本各个地区的贸易据点,拥有繁荣的港口。岛屿间的往来,人与货物的混杂勾勒出这片区域。园舍融合了托育园,放学后托管,生病儿童托育三种用途,使用该设施的孩子们从0到18岁年龄范围广阔,残疾儿童和普通儿童都在同一个设施内生活。
现代社会正逐步在向包容性社会发展,人与人的不同能得到认可的环境中,互相体谅互相帮助的关系得到推崇。不管是否有残疾,孩子们共同学习的教育环境得到提升,政府的福利卫生劳动部发起的包容性保育不断发展。然而由于教员不足,残疾儿童被霸凌等问题,包容性保育只推广到了部分区域。园舍确保了具备有各种功能的活动场所,希望打造一个让孩子们充分了解自己出生成长的地方,并能互相理解的场所。
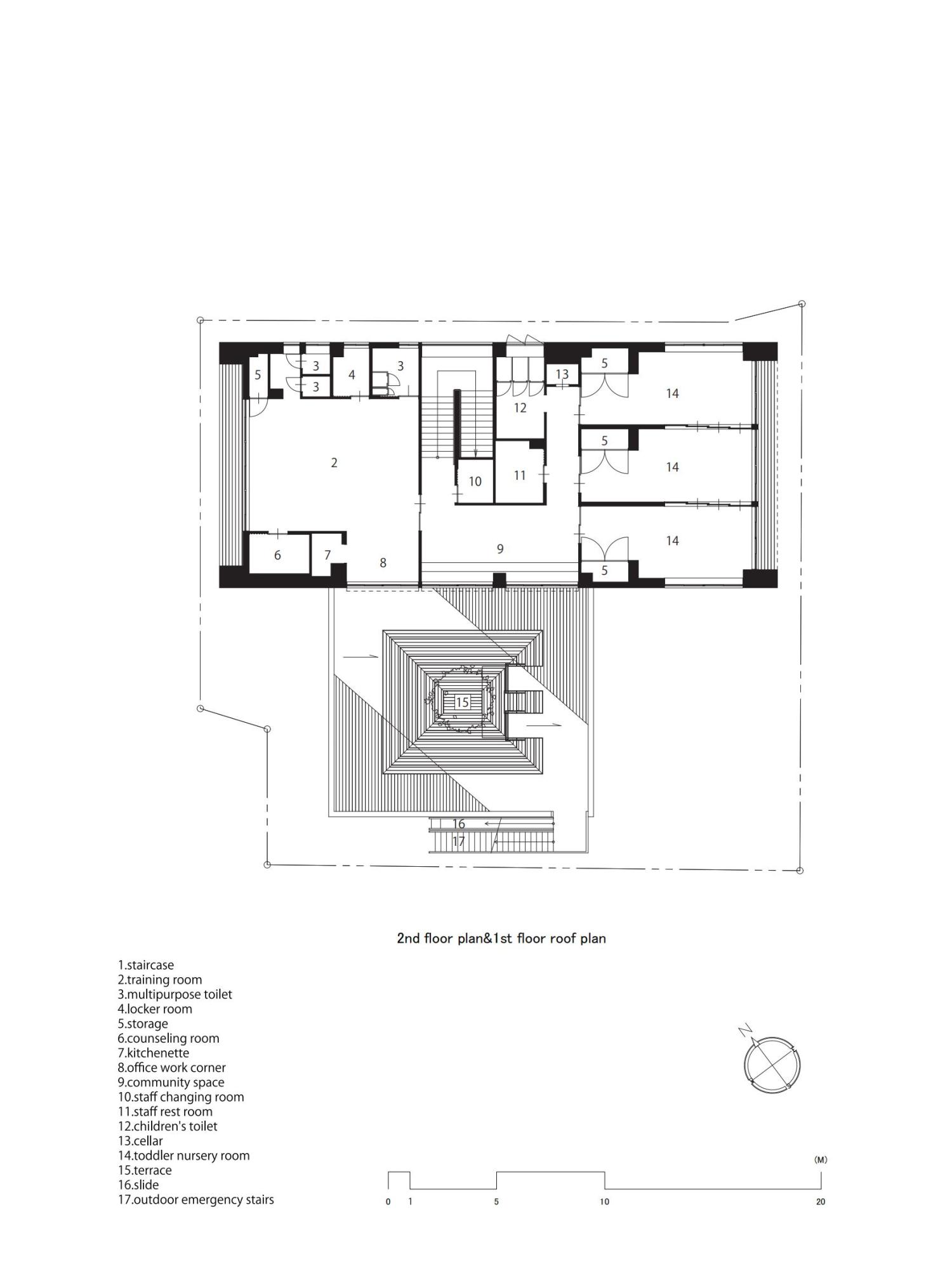
建于敦贺港附近的园舍,模拟港口的灯台设置了金字塔型的甲板露台,孩子们在这里玩耍交流的同时,各种动作和活动的产生运动量也得到了增加。
公共空间用当地泥土制作了三种种类的土墙。外墙砖,木地板采纳了具有当地特色的建筑和植物的颜色和花纹。隔扇,边框,家具随机配色得以更自然地融合。孩子们有机会观察触摸各种各样的素材,对故乡也感到更加亲切和眷恋。
连接房间与房间的交流空间,设置了绘本角,土墙墙壁设计了迷宫造型,孩子们的好奇心被刺激在这里又能学又能玩。
容易变得封闭的指导训练室面朝道路敞开,孩子们能从室内看到外面的街道,室外的人也能瞧见室内活动的样子。连接庭园的餐厅,设置了全开放式的推拉玻璃门,能从餐厅欣赏到前方气比神宫的绿意。孩子们在舒适的开放性空间生活的同时,也能感受到和附近区域环境以及居民的羁绊。
孩子们在园舍中生活,自然而然产生关怀体贴考虑他人的心情,接触当地的历史和素材,在能和各种各样的人交流的环境中,了解并接受人与人之间的差异,互相尊重,不断成长。
设计图
项目名:JPP Nursery
所在地:福井县敦贺市
设计监理:HIBINOSEKKEI + Youji no Shiro + KIDS DESIGN LABO
占地面积:681.01㎡
建筑面积:413.34㎡
使用面积:629.65㎡
构造规模:钢筋结构、地上两层
竣工时间:2022年2月
摄影:井上 隆司
Instagram:@youji_no_shiro @takuhibino
facebook:@幼児の城
twitter:@Taku Hibino(HIBINOSEKKEI) 日比野設計+2343+KIDSSMILELABO
@youji_no_shiro
更新日期:2023-09-19 15:07:58
非常感谢 日比野设计 与 Youji no Shiro 与 KIDS DESIGN LABO 带来的精彩项目, 查阅更多