| 公司: | Splinter Society | 类型: | 建筑 |
|---|---|---|---|
| 地区: | 澳大利亚 | 标签: | 别墅私宅 |
Hawthorn Gable House 坐落在一个珍贵的遗产庄园内,是一个年轻家庭敏感的当代回应。通过借用传统材料和形式,并使其适应现代语言,该住宅在简洁的布局中包含了丰富的表达,打造出一个令人愉悦的居住环境。
Sitting within a prized heritage estate, Hawthorn Gable House is a sensitive contemporary response for a young family. By borrowing traditional materials and forms, and adapting them to a modern language, the home contains a richness in expression alongside a simplicity of layout, making for a pleasurable home to inhabit.
任务书很简单——建造一座实用、美观、现代的家庭住宅,尊重两次世界大战期间老房子的历史,同时保持经济高效。
The brief was simple - to deliver a functional, beautiful, contemporary family home that honoured the history of the old interwar home, whilst being financially efficient.
通过仔细保留现有的平面图,屋顶瓦片、山墙形式、小型砖车库、简单的装饰木制品和纹理渲染成为了这座历史庄园中住宅的典型,并形成了这种现代改造的语言。
Through the careful retention of the existing floor plan, roofing tiles, gable forms, small brick garage, simple decorative timber work and textured renders typify the homes in this historic estate, and forms the language for this modern adaptation.
保持传统的小房间布局既可以节省费用和可持续性优势,又为照顾三个年幼的孩子提供了功能性解决方案。在垂直、水平和周围景观方面建立了微妙的联系,增强了内外部的连接和监控,同时最大程度地减少了彼此之间的影响。
Maintaining the traditional smaller room layout provides significant financial and sustainable benefits, whilst creating a functional solution for housing 3 young children. Subtle links are created vertically, horizontally and to surrounding landscape, establishing connection and surveillance, whilst minimising impact on each other.
为了满足“光线充足,同时保持温暖和质感”的要求,从房屋的中心雕刻出一个顶部照明的双高入口空间,并用倾斜的石膏和木屏风过滤光线。
To meet the brief for 'light filled, whilst retaining warmth and texture', a top lit, double height entry void was carved from the home's centre, with raked plaster and timber screens filtering light.
原来的山墙车库被保留并重新用作厨房,为这些房屋的历史形式和布局提供了重要的联系。
The original gabled garage is retained and re-purposed as kitchen, providing important links to the historical form and layout of these homes.
在房屋后方创造了一个明显现代化的附加部分,为家庭提供了开放的生活空间。屋顶线的几何形状以及陶瓷釉面的材质都是对原建筑物的倾斜瓦片屋顶的参考。入口门周围的经典拱形细节在现代装置中得以呼应,玻璃开口被一个弧形切割窗框所包围。
A distinctly modern addition is created at the rear of the house, providing open living spaces for the family. The geometry of the roofline as well as the ceramic glazed materiality are a reference to the sloping tile roof of the original building. The classic arch detailing around the entry door is mirrored in a modern counterpart where the glazed opening is framed by and arched cut-out.
虽然从外部看,房屋在前后之间呈现出不同的外观,但从传统到现代的内部语言过渡被处理得像是一种重叠和交织,使附加部分和传统住宅难以分割,允许两者的丰富性都能显现出来。
Whilst externally the home presents differently from front to back, the transition of internal language from traditional to contemporary is handled as a kind of overlapping and intertwining, making the addition and traditional home difficult to separate, allowing for the richness of both to be evident.
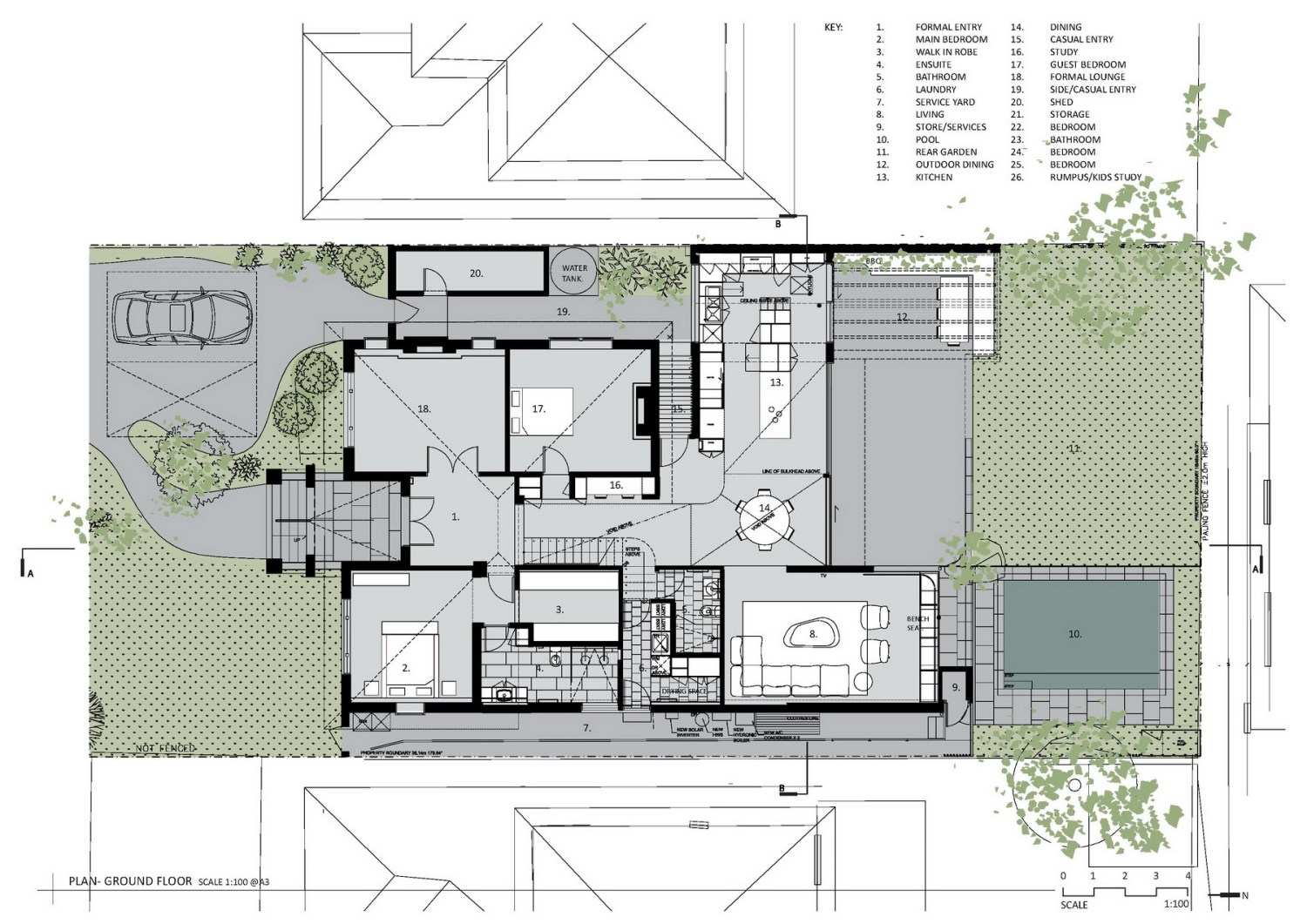
▽地面层平面图,Ground plan.
▽一层平面图,First floor plan.
▽立面图,Elevation.
▽剖面图,Section.
Project: Hawthorn Gable House
Architect: Splinter Society; @splinter_society_architecture
Website: https://www.splintersociety.com/
Photography: Sharyn Cairns / @sharyncairns
更新日期:2023-10-26 16:34:51
非常感谢 Splinter Society 带来的精彩项目, 查阅更多